洛陽建業桂圓別墅,獨特的獨門獨院中國墅,除卻6米3挑空和120平方花園之外,還有70平方花園露臺。由專業別墅裝修設計公司宏鈺堂裝飾承接的陳公館以“輕奢、現代、 藝術”來定義新型大宅空間,打造時尚高雅的別墅新生活。
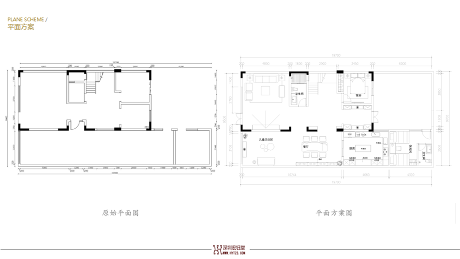
別墅一層平面功能規劃圖
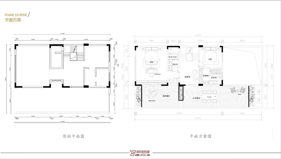
別墅二層平面功能規劃圖
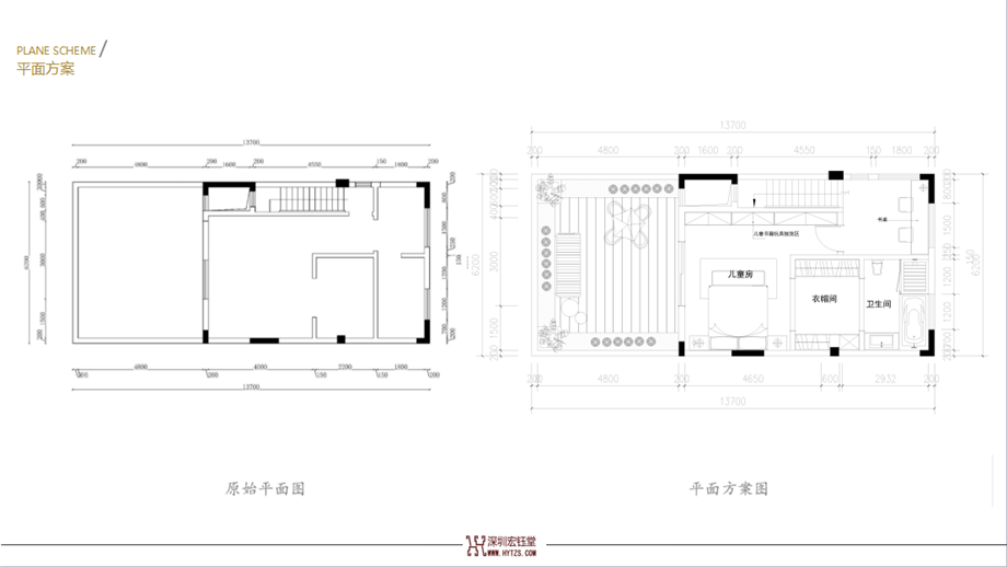
別墅三層平面功能規劃圖
別墅客廳以全景落地玻璃窗鋪陳,將窗外風景引入室內。黑白灰營造的質感簡約空間以午夜星空藍為點綴,沉靜而優雅。餐廳與客廳以電視背景墻分割,藉由鏡面及茶玻拼合而成的展示柜與定制藝術吊燈形成互動。幾何形狀藝術感壁畫搭配定制大理石墻面,為用餐空間增添一份藝術氣質。
別墅主臥及衛浴設計以奢華精品酒店為模板打造,舒適的起居空間搭配全大理石鋪陳的奢華衛浴,在家也能享受度假般的休閑體驗。兒童房配備有獨立衛浴,以小房子的形式搭建休息區,帶給孩子無限童趣。同時沿墻打造一系列收納空間,讓整個兒童房更貼近生活。
別墅露臺以都市后花園的概念打造,以戶外防腐木分區鋪陳搭配鵝卵石營造休閑感??裳搴糜崖杜_聊天喝酒,也可拾階而上,獨享個人時光。
別墅軟裝設計方案
別墅軟裝設計方案














